Новый автобусный маршрут № 32 начал курсировать в Череповце 4 ноября
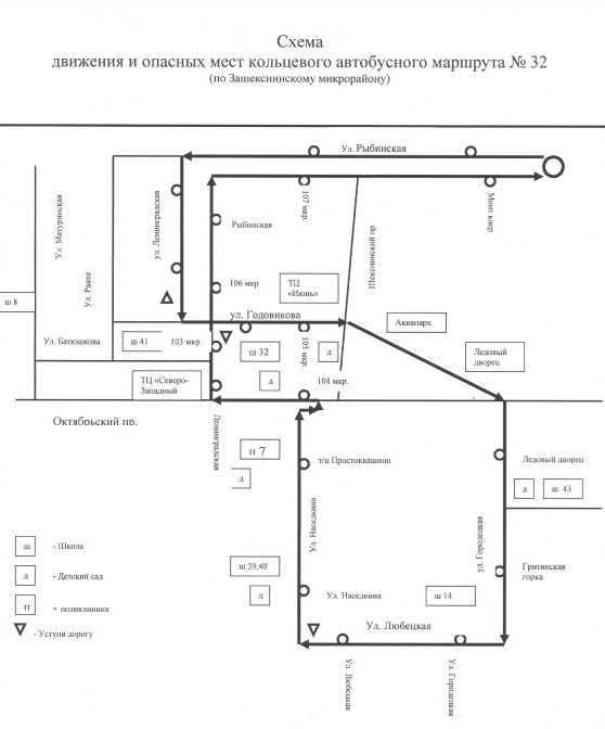
Официально маршрут откроется в ближайшее время. Новый маршрут будет связывать части в последнее время сильно разросшегося Зашекснинского района.
В случае популярности планируется запустить несколько автобусов (пока на линию будут выставлять только одну машину), — рассказывает заведующий отделом транспорта мэрии Череповца Виктор Гашин:
«Автобус будет ходить по строгому расписанию, которое в настоящее время уже вывешено в школах и детских садах Зашекснинского района и непосредственно на остановках. Автобус будет выходить с конечной остановки на Монт-Клер, затем двигаться по Рыбинской до Ленинградской и дальше, совершая петлю по району. Через Любецкую, Наседкина и Октябрьский проспект автобус возвращается обратно на Ленинградскую и движется тем же маршрутом до конечной остановки».



